NIKOO HOMES V
Thanisandra Main Road
New Launch
RERA Approved
OC Received
~Introducing Nikoo Homes V, the latest addition to Bharatiya City, a sprawling 125-acre integrated township in Bengaluru. This prestigious development offers a blend of luxury and convenience, featuring IT parks, the opulent Leela Palace hotel, the expansive Bharatiya Mall of Bengaluru, an international school, and premium residences. Nikoo Homes V stands out with its cutting-edge Mivan construction technology, ensuring superior build quality and durability. Residents can enjoy a lavish 42,000 sqft clubhouse, offering a plethora of amenities and recreational facilities.
~Nikoo Homes V provides an unparalleled living experience with its high-rise design, boasting 38 floors of premium apartments. This mini-city offers a holistic lifestyle with its array of luxuries and conveniences, catering to every need of its residents. From the serene landscapes to the vibrant community spaces, every aspect of Nikoo Homes V has been meticulously planned to offer an elevated living experience. Embrace the future of urban living in this exclusive enclave within Bharatiya City, where modernity meets tranquility.
Updated :
Zonal Authority
BBMP
Size
21.3 Acres
No of Units
568
No of Towers
2
Elevation
3B+G+38
Possesion
June 2030
Contact Us
Typology
Configuration | Size (Sqft) |
|---|---|
2BHK 2T | 1144 |
2.5BHK 2T | 1317-1386 |
3BHK 3T | 1610-1735 |
3.5BHK 3T | 1872 |
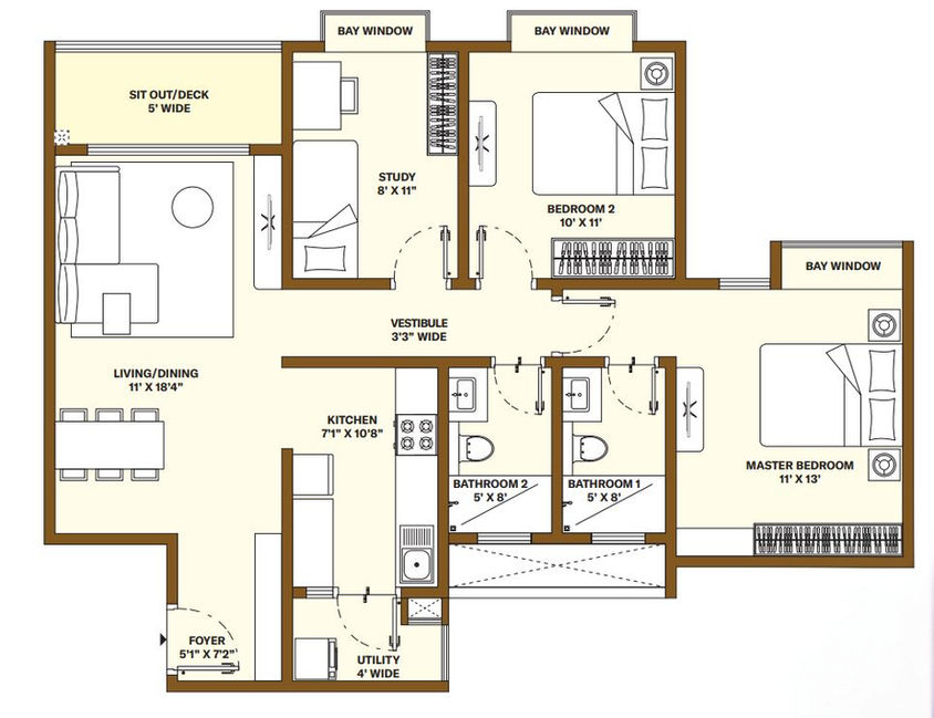
Floor Plans
Location
Google location might not be always accurate, kindly contact the team to get the exact location
Amenities
Swimming Pool
Basket Ball
Tennis
Cricket
Badminton
Kids Play Area
Gym
Party Hall
Pet Park
Indoor Games
Outdoor Chess
Skating Rink
Volley Ball
Foot Ball
Retail Store
Other Amenities
Cricket Practice Net, Meditation Garden, Celebration Lawn, Reflexology Path, 42000 Sqft Club House, etc
Project Gallery
Micro Market
Namma Arogya Hospital
1.37 km
Sparsh Hospital
5.04 km
Manipal Hospital
6.10 km
Aster CMI Hospital
6.13 km
About Builder
Bhartiya designs began with fashion in 1987, serving some of the world’s best brands. Harnessing their insight into lifestyle solutions across the world, Bhartiya Group embarked on designing and developing a whole city in Bengaluru, and named it Bhartiya City. Brought to you in partnership with our residential brand, Nikoo Homes, Bhartiya City is the first integrated city of its kind in India. The Bhartiya Group has a presence in many cities across the world with design studios in Italy and manufacturing infrastructure in India and China. Our business is structured into three verticals:
Bhartiya International, which focuses on apparel and accessories manufacturing
Bhartiya Urban, a real estate development business
Bhartiya International SEZ, focusing on development of industrial parks
Pricing
Configuration | Price | Cost Sheet |
|---|---|---|
2BHK 2T | 1.25 Cr | |
2.5BHK 2T | 1.47-1.49 Cr | |
3BHK 3T | 1.77-1.9 Cr | |
3.5BHK 3T | 2.05 Cr |
Request Brochure
Compare Your Options

Add a Title

Add a Title

Add a Title

Add a Title

Add a Title

Add a Title

Add a Title
Connectivity
Add a Title
Convenience
Add a Title
Affordability
Add a Title
Review
-

Add a Title
Add a Title
Add a Title
Connectivity
Add a Title
Connectivity
Add a Title
Connectivity
Add a Title

Add a Title
Add a Title
Add a Title
Connectivity
Add a Title
Connectivity
Add a Title
Connectivity
Add a Title
Similar Properties
Disclaimer: Any content mentioned in this website is for information purpose only and Prices are subject to change without notice. This website is just for the purpose of information only and not to be considered as an official website




















.jpeg)
.jpeg)







.jpeg)